Na sprzedaż przestronne mieszkanie w kamienicy centrum 87m2
Legnica Pokaż na mapie ›
Ogłoszenie archiwalne Wygasło: Niedziela, 27 Lipiec, 2025 19:50
510 000 zł
5862 zł/m2
Szczegóły ogłoszenia
- Kategoria: Mieszkania / Sprzedaż
- Powierzchnia:87 m2
- Liczba pokoi:3 pokoje
- Zabudowa:Kamienica
- Tech. budowy:Cegła
- Piętro :3 piętro
- Liczba pięter:4 piętra
- Rynek:Wtórny
- Rok budowy:1930
- Stan:Do zamieszkania
- Forma kuchni:Oddzielna
- Sprzedaż:Bez pośredników
- Inf. dodatkowe:Ogródek, Pom. użytkowe, Piwnica, Miejsce parkingowe
- Cena: 510 000 zł / 5862 zł/m2
- Ulica: Zielona
Opis oferty
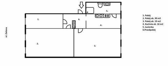
Na sprzedaż przestronne mieszkanie w kamienicy usytuowane w doskonałej lokalizacji w pobliżu parku i centrum Legnicy. Mieszkanie znajduje się na trzecim parterze w kamienicy przy ulicy Zielonej wpisanej do rejestru zabytków. Oferowana nieruchomość posiada powierzchnię 107 m² która jest wpisana do księgi wieczystej. Nieruchomość stanowi trzypokojowe mieszkanie o powierzchni 86 m² oraz dodatkowe powierzchnie użytkowe: prywatna komórka na strychu oraz piwnica o łącznej powierzchni 21 m².Mieszkanie składa się z:
• Trzech osobnych pokoi,
• Przestronnej kuchni,
• Łazienki z WC,
• Przedpokoju.
Szczegółowy rozkład mieszkania wraz z metrażem pomieszczeń został ukazany poniżej.
Mieszkanie dwustronne - z oknami wychodzącymi zarówno na zielony park, jak i na spokojną część ulicy, co zapewnia komfort oraz ciszę w bliskiej odległości od centrum miasta.
Atuty mieszkania:
• Wymieniona instalacja elektryczna, piec gazowy dwufunkcyjny, nowe okna,
• Doskonały rozkład: trzy oddzielne pokoje, przestronna jasna kuchnia
• Mieszkanie nie wymaga dodatkowych nakładów finansowych - jest gotowe do wprowadzenia,
• Dodatkowa powierzchnia użytkowa: prywatna komórka na strychu oraz piwnica,
• Lokalizacja: bliskość parku oraz centrum miasta, dobra komunikacja i infrastruktura.
• Mieszkańcy kamienicy mają do dyspozycji ogólnodostępny ogródek przed budynkiem
Cena: 510.000 PLN
Zapraszam do kontaktu i oględzin mieszkania.
Sprawdź zainteresowanie tym ogłoszeniem
Wyświetlenia
Data dodania
Ostatnio widziany
Obserwujących
Wysłane zapytania
Odsłony telefonu
Powiadom o podobnych ogłoszeniach
Lokalizacja: Legnica
Kategoria: Nieruchomości » Mieszkania » Sprzedaż
Cena: od 433500 zł do 586500 zł Powierzchnia : od 74 m2 do 100 m2
Chcę otrzymywać powiadomienia o nowych ofertach
Krystyna
Konto prywatne
Na Lento.pl od 24 lut 2025
Odpowiada szybko
Strona użytkownika
- Wypromuj ogłoszenie
- Zgłoś naruszenie
- Edytuj/usuń ogłoszenie
- Udostępnij ogłoszenie
- Dodaj na Facebook

















